
Il sistema permette la realizzazione di finestre 1,
2 e 3 ante, battente, portafinestra, portoncina
ad una o più ante. Sistema di apertura vasistas,
antaribalta, bilico o a sporgere.
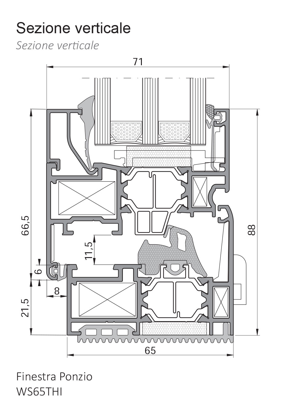
Prestazioni per la nuova finestra in alluminio WS65THI.
- - Guarnizione cingivetro e guarnizione adesiva sotto vetro migliorano le prestazioni termiche e acustiche
- - La guarnizione centrale delimita una pre-camera che garantisce una tenuta eccellente
- - Profilo dell’anta sagomato per facilitare l’aerazione nella camera di appoggio del vetro
- - Isolamento termico ottimale, merito delle barrette isolanti che riducono la conducibilià di caldo e freddo.
Tipologie di apertura






| 

